ferien-im-fachwerkhaus - Header

BACKESGARTEN

Neichen

Typ:
Ferienhaus
Größe:
280m2
Zimmer:
9
Schlafzimmer:
7
Personen:
22
Haustier: ja

Ausstattung

Jetzt Buchen

Belegung

Beschreibung

GRUPPENFERIENHAUS

DAS FERIENHAUS
Ein Aufenthalt im Ferienhaus Backesgarten kann viele Gründe haben. Hier findest du Ruhe, Entspannung, einzigartige Natur und ein wunderschönes Haus. Es gibt viele Dinge die du im Ferienhaus Backesgarten erleben kannst aber sie werden erst dann besonders und unvergesslich wenn du sie gemeinsam mit deiner Gruppe erlebst.
Du wirst unser gemütliches Ferienhaus lieben. Der ländliche und historische Charm machen es einzigartig. Das Haus wurde etwa 1920 erbaut und mit der Zeit immer wieder erweitert.

Das Haus bietet Dir viele Möglichkeiten. Auf über 280 qm im Innenbereich sowie etwa 3000qm Außenbereich kannst du dich freuen. Viel Platz, stielvoll eingerichtet und praktisch, so in etwa beschreiben wir das Haus.

Küche mit Platz für bis zu 22 Personen
Wohnzimmer mit Kamin und IP-TV
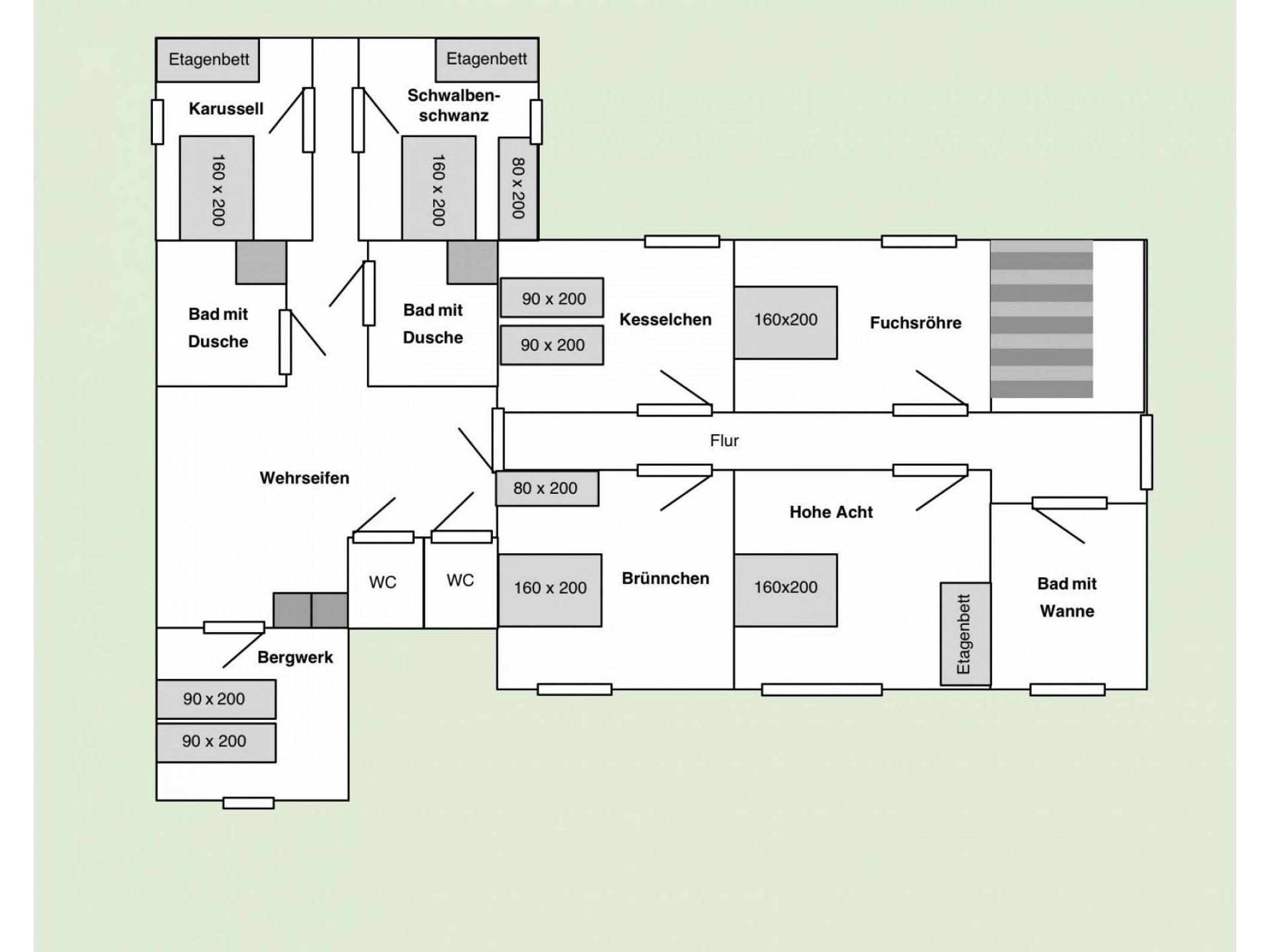
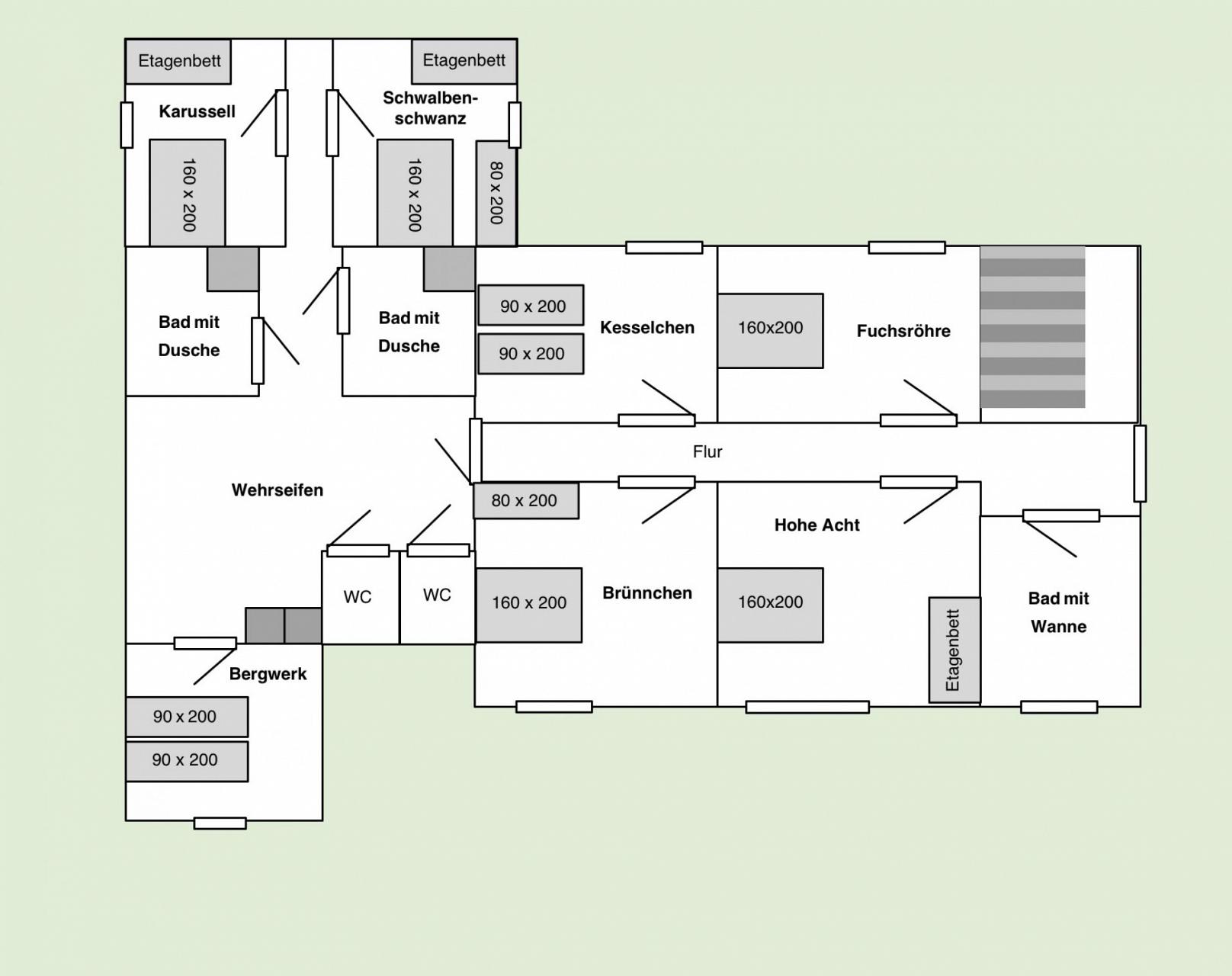
7 Schlafzimmer
3 Bäder
4 WC's

360-Grad Ansicht

Garten
PFLANZGARTEN & TIERGARTEN
Du spürst hier die Schönheit und Vielfalt der Natur. Viel Platz um zu entspannen, Spaß zu haben und gemeinsam eine wundervolle Zeit zu verbringen. Uns war es wichtig so wenig wie möglich und so viel wie nötig in die Natur einzugreifen. Entstanden ist ein Park ähnlicher Garten mit unterschiedlichen Bereichen auf etwa 3000qm.

DIE BOXENGASSE
War früher eine Werkstatt, hier ist in der Vergangenheit bereits viel passiert. Angeknüpft an die damalige Zeit wollen wir das es so bleibt, mit dem Unterschied das nun niemand mehr sich die Hände dreckig machen muss. Der Spaß für Groß und Klein steht ganz oben.

Ausstattung

BabybettBadewanneBillard
BügeleisenDuscheDVD
FernseherHeizungInternet
KaltwasserKaminKinderstuhl
MusikanlageSat-TVSmart TV
SpieleStaubsaugerTerrasse
TrocknerWarmwasserWaschmaschine
WLAN
Küche
BackofenDunstabzugGefrierschrank / Fach
GeschirrspülerHerdInduktionskochfeld
KaffeemaschineKühlschrankMikrowelle
Mikrowelle mit GrillToasterWasserkocher
Aussenbereich
GartenGartengrillGartenmöbel
ParkplatzPoolTerrasse
Eigenschaften
AnglerfreundlichHaustier erlaubtNichtraucher
Sauna gemeinsame Nutzung
Weitere Ausstattung
AirhockeyBillardBogenschiesen
DartFußbälleHühner
Kettcar und Bobby CarKickertischKinderfahrräder
SpielplatzTischtennisplatte & Zubehör
Betten
Einzelbetten4
Doppelbetten6
Etagenbetten3

Preise

  • Vermietung ab 2 Übernachtungen
  • Preise sind inklusive aller Nebenkosten
  • Individuelle Reisedauer nach Anfrage

 Anzahl Nächte                  Preise ink. Nebenkosten
 2  2090 €
 3  2410 €
 4  2860 €
 5  3310 €
 6  3760 €
 7  4210 €











Hausinfo

Freizeitmöglichkeiten
Biken, Wandern, Nürburgring, Billard, Tischtennis, Dart, Airhockey, Fußball, Lagerfeuer und vieles vieles mehr.
Entfernungen
Einkaufsmöglichkeit4000 m
Restaurant4000 m
See10 km
Arzt4000 m
Bus200 m
Autobahn4000 m
Nächste StadtKelberg 4000 m

Sie haben Fragen oder wünschen Beratung?